Active
3234 S Westnedge Ave
3234 S Westnedge Ave, Kalamazoo, MI 49008
1 / 44

Overview
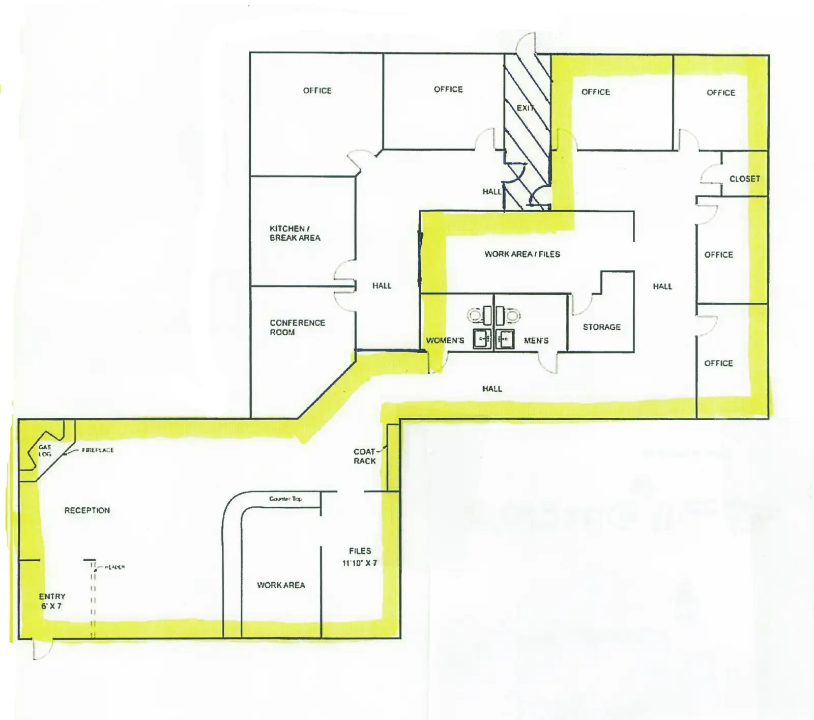
Multi-use commercial building located on one of Kalamazoo’s busiest corridors with exceptional frontage and visibility. Ideally situated minutes from downtown Kalamazoo and the prime Portage market. The property offers flexible configurations ranging from single office suites to larger multi-office layouts, supporting a wide range of users. Recently price reduced and well positioned for a value-add investor or owner-user seeking upside in a high-traffic location.
For Sale
Office
- Sale Price
- $425,000
- Price Per SF
- $37.8/SF
- Building Size
- 11,244 SF
- Acres
- 1.283 ac
- Zoning
- C-NODE
- Zoning Desc.
- Commercial Node District
- Year Built
- 1957
- Tax ID Number
- 39000633234001
- County
- Kalamazoo
- Available
- 12/12/2025
- Listed
- 01/01/2026
- Updated
- 01/01/2026
- Listing ID
- f993f3aa
- Parcel APN
- 06-33-234-002










































