Active
DerHammer Pkwy; #2
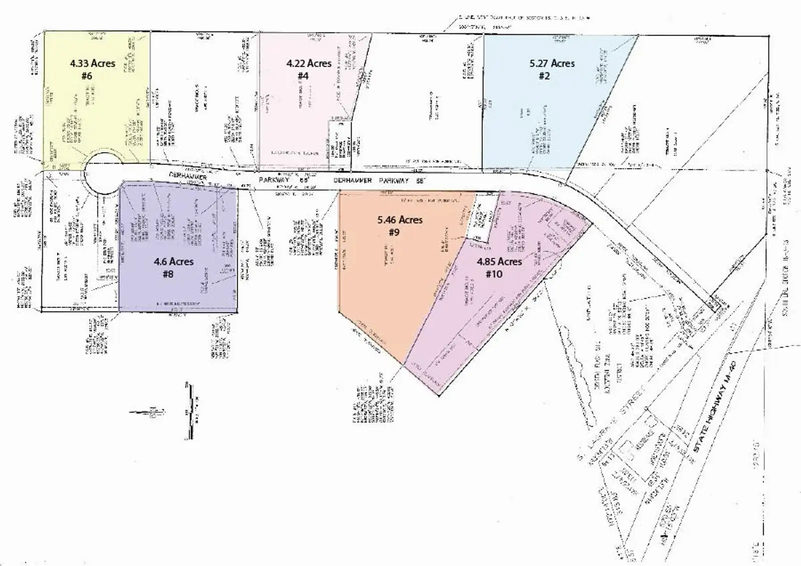
DerHammer Parkway Paw Paw, MI 49079
1 / 4

Overview
This Industrial Park offers a unique blend of natural beauty and strategic location. Conveniently situated less than one mile from the intersection of I-94 and M-40, it ensures easy access for transportation and logistics. The property is serviced by well and septic systems and is zoned Light Industrial by Antwerp Township, making it ideal for a range of business uses. There are six land tracts available, ranging in size from 4.22 to 5.46 acres, with the flexibility to combine parcels to suit larger development needs.
For Sale
Land
- Sale Price
- $237,150
- Price Per Acre
- $45K/ac
- Acres
- 5.27 ac
- Zoning
- LIGHT INDUSTRIAL
- Nearest MSA
- Kalamazoo-Portage
- County
- Van Buren
- Created
- 2025-04-29
- Updated
- 2025-07-31
- Listing ID
- e9d6661d
- Parcel APN
- 80-02-018-053-35