Fully Equipped Data Center for Sale - Ann Arbor
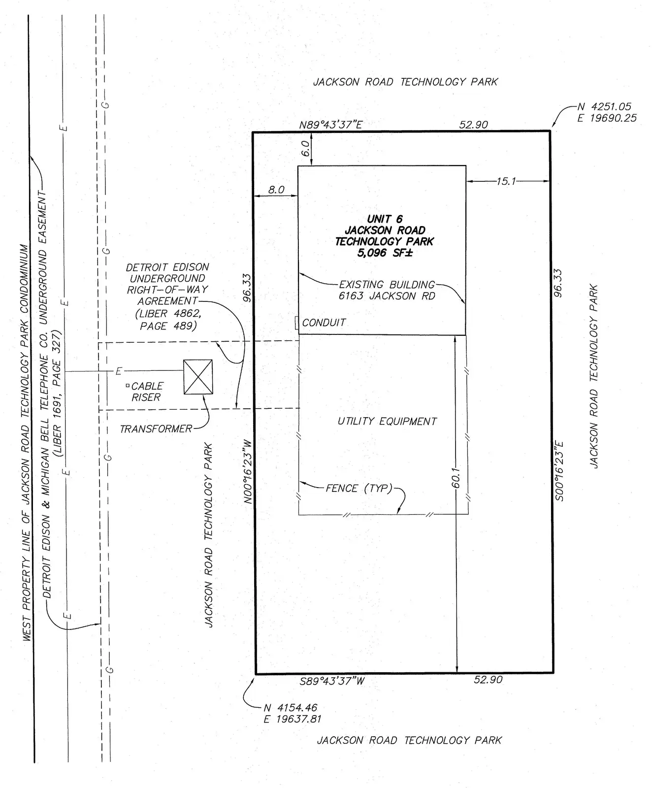
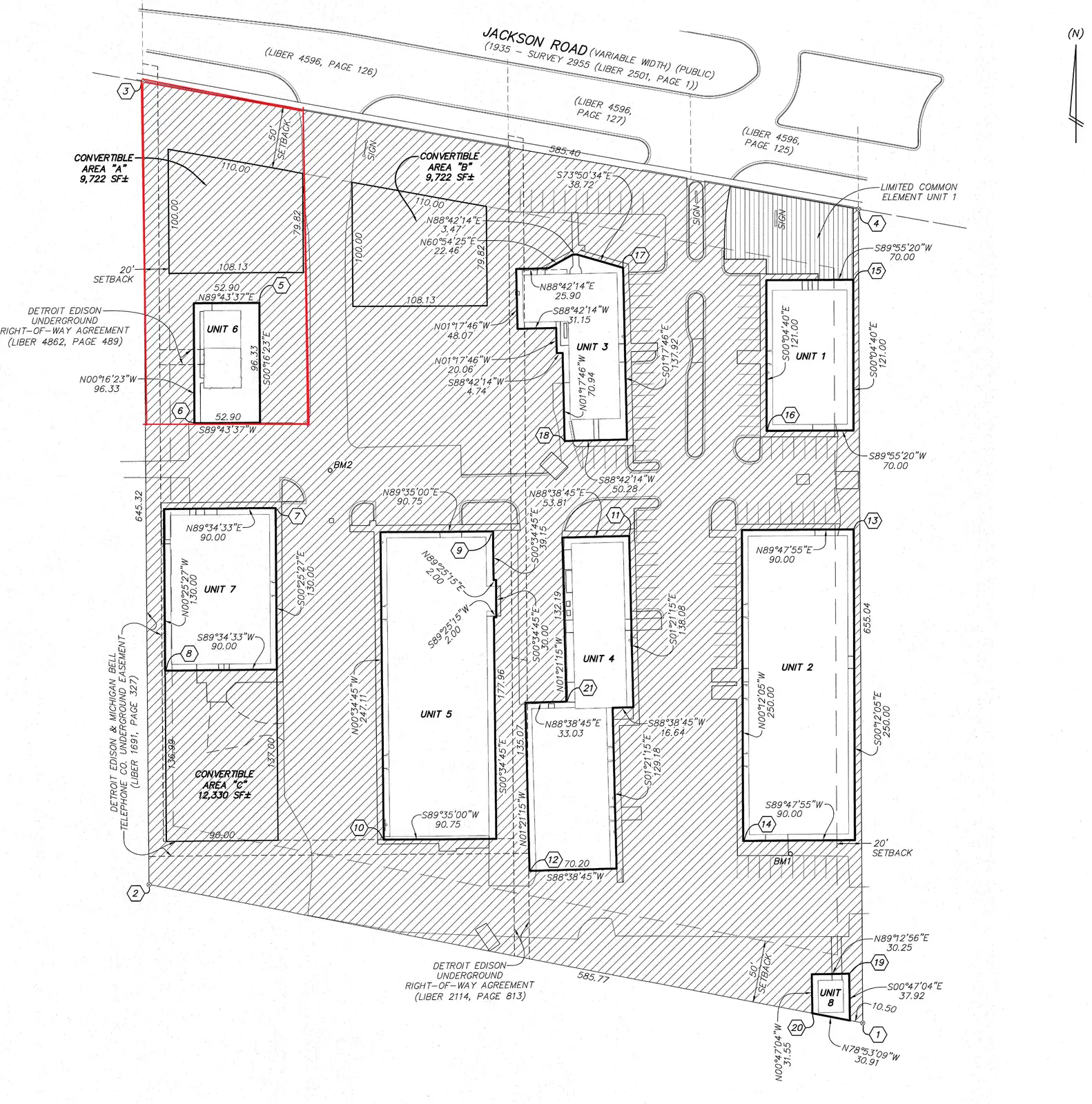
6163 Jackson Road Ann Arbor, MI 48103

Overview
- Property for sale
- Fully equipped data center for enterprise client
- Located on Jackson Road west of Zeeb Road
- Possible uses include corporate data center, disaster recovery center
- Enterprise IT environment with high end storage
- 400 KW backup generator transition from utility to back-up is UPS (uninterrupted power supply) with transfer switch and A/C
- Engineered power, fire suppression, and FM200 cooling system
- Engineered for 200 KW capacity and currently at 80 KW
- Comcast line - 1 GB download capacity down business line
- Managed services provider, fiber-optic at Jackson Rd
- Turnkey system ready for occupancy
- Additional land for expansion/development
Property for sale
Fully equipped data center for enterprise client
Located on Jackson Road west of Zeeb Road
Possible uses include corporate data center, disaster recovery center
Enterprise IT environment with high end storage
400 KW backup generator transition from utility to back-up is UPS (uninterrupted power supply) with transfer switch and A/C
Engineered power, fire suppression, and FM200 cooling system
Engineered for 200 KW capacity and currently at 80 KW
Comcast line - 1 GB download capacity down business line
Managed services provider, fiber-optic at Jackson Rd
Comcast line - 1GB business line
Turnkey system ready for occupancy
Additional land for expansion/development
Attachments
Links
For Sale
- Building Size
- 900 SF
- Acres
- 0.46 ac
- Is Vacant
- Yes
- Zoning
- I-1 (LIMITED INDUSTRIAL)
- Building Name
- 6163 Jackson Data Center
- Number of Buildings
- 1
- Floors
- 1
- Roof Type
- Flat
- Construction Type
- Masonry
- Internet Access
- Fiber Optic
- Submarket
- Washtenaw W of 23
- Property Status
- Existing
- Nearest Interstate
- I-94
- Nearest Highway
- US-23/M-14
- Nearest Airport
- DTW
- County
- Washtenaw
- Created
- 2023-05-24
- Updated
- 2025-10-15
- Listing ID
- fdb9f476
- Parcel APN
- H -08-21-325-006