Nest Restaurant for Lease at Prestigious Robin Hills Farm
20390 N M-52, Chelsea, MI 48118

Overview
For Lease: Restaurant located in Prestigious Robin Hills Farm – 20390 N M-52, Chelsea, MI
Turnkey Commercial Kitchen | Expansive Patio Dining | High-Demand Event Destination
“Robin Hills Farm is a unique agri-tourism destination featuring three event spaces—Pasture Barn, Glasshouse, and The Nest (https://www.robinhillsfarm.com/).”
Now available for lease, this fully equipped restaurant shines as a rare opportunity to operate within one of the region’s most scenic and versatile hospitality properties. The previous "Nest” closed Fall 2024 and the site is ready for immediate occupancy, offering a wide range of revenue streams. Use the "Nest" name to open with your concept or rename it.
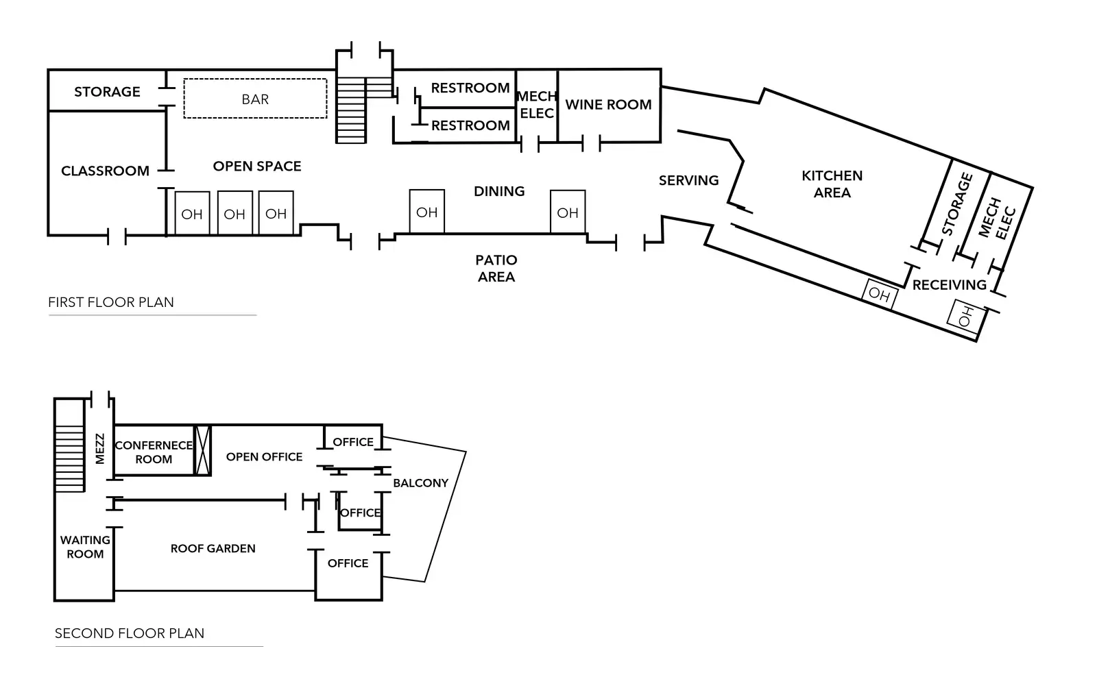
• Features a state-of-the-art commercial kitchen, fully equipped and ready for operation.
• Interior dining area seats 175, offering a spacious and comfortable environment for guests.
• Outdoor patio seating area (155’ x 30’) with additional seating for 150, seamlessly connected to the interior dining and bar area by five roll-up glass garage doors open to the outdoor dining space, providing scenic views of two ponds.
• Designed for operational efficiency with an overhead door for waitstaff servicing the patio and a separate overhead delivery door directly into the kitchen.
• Boasts soaring exposed ceilings, ranging from 19’ to 24’, with modern spiral ductwork that enhances the open, industrial aesthetic.
• Use and/or purchase of existing furniture is negotiable, offering flexibility for incoming operators.
Located on a 130-acre working farm, the property includes:
• Four scenic ponds
• Pasture Barn – timber-framed, open-air event structure with 8 surrounding acres
• Glasshouse – enclosed event space with panoramic views and patio
• Outdoor Amphitheatre – naturally terraced seating for performances and programs
• Extensive hiking trails and natural surroundings
This site is a proven event destination:
• 100+ events hosted in 2024
• 55 weddings already booked for 2025
• Event capacity ranges:
- Weddings: 80–300 guests
- Private events: 50–200 guests
- Corporate/educational/community: 20–800 guests
This turnkey restaurant offers an exceptional opportunity for restaurant operators, caterers, or hospitality groups looking to lease a fully functional and highly sought-after restaurant location with built-in demand.
- Features a state-of-the-art commercial kitchen, fully equipped and ready for operation.
- Interior dining area seats 175, offering a spacious and comfortable environment for guests.
- Outdoor patio seating (155’ x 30’) for 150, seamlessly connected to the interior dining and bar area by five roll-up glass garage doors opening the dining space to the outdoors, providing scenic views of two ponds.
- Designed for operational efficiency with an overhead door for waitstaff servicing the patio and a separate overhead delivery door directly into the kitchen.
- Boasts soaring exposed ceilings, as high as 24’, with modern spiral ductwork that enhances the open, industrial aesthetic.
- Use and/or purchase of existing F F & E, including Class C Liquor License is negotiable, offering flexibility for incoming operators.
- Qualified prospects please contact brokers to schedule a tour.
Lease Spaces
| Name | Floor | Rate | SF |
|---|---|---|---|
| Robin Hills Farm Restaurant | 1-2 | $12,000 /Month | 9,250 SF |
Attachments
For Lease
Secondary Uses: Restaurant
- Lease Rate
- $12,000 Month
- Available SF
- 9,250 SF
- Building Size
- 9,250 SF
- Acres
- 129.71 ac
- Zoning
- AG
- Zoning Description
- Agricultural
- Lease Type
- Plus Utilities
- Number of Buildings
- 1
- Floors
- 1
- Year Built
- 2019
- Parking Spaces
- 20
- Submarket
- Washtenaw W of 23
- Tax ID Number
- F -06-01-100-027
- Property Status
- Existing
- Nearest Interstate
- I-94 - 2 mi
- Nearest Highway
- M‑52
- Nearest Airport
- Detroit Metropolitan Wayne County Airport (DTW) - 41 mi
- Nearest Port
- Port of Detroit - 57 mi
- Power Provider
- Private - City of Chelsea
- Water Provider
- Private - Well
- Sewer Provider
- Private - Septic
- Natural Gas Provider
- Private - Consumers
- County
- Washtenaw
- Listed
- 04/02/2025
- Updated
- 10/21/2025
- Listing ID
- e6f6d1b0
- Parcel APN
- F -06-01-100-027
































