Warehouse for Lease in Dexter
7850 2nd St, Dexter, MI 48130

Overview
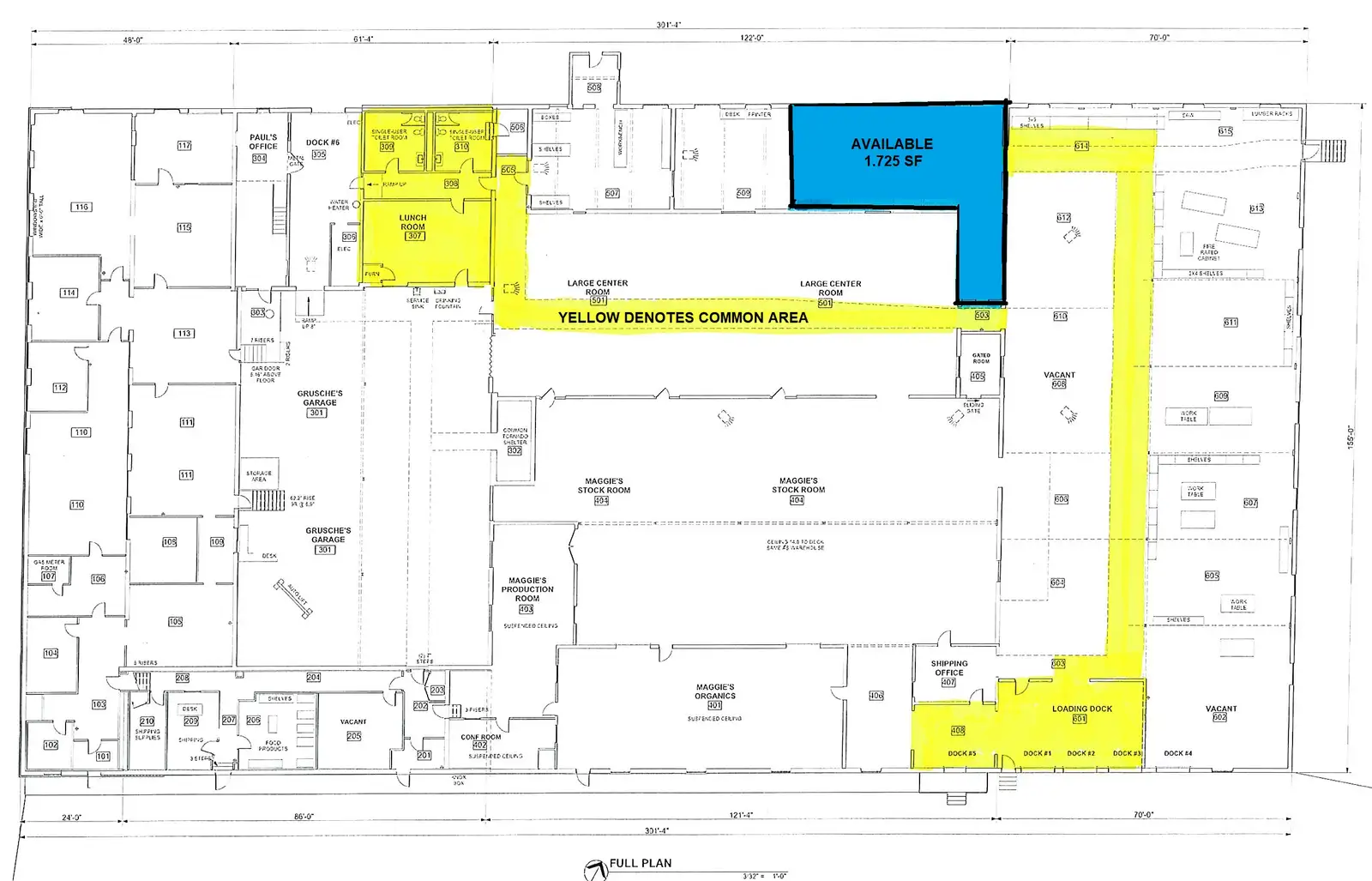
This 1,725 SF warehouse suite offers clean, functional space within a larger industrial building just steps from downtown Dexter. The space features 16' clear ceiling height, large windows providing natural light, and warehouse shelving that can remain or be removed depending on tenant needs. Users benefit from access to multiple loading docks as well as a convenient secondary elevated loading door for flexible shipping and receiving operations.
Interior amenities include a private thermostat, access to a shared breakroom/kitchenette, and restrooms. The suite provides an efficient footprint suited for distribution, light manufacturing, storage, contractor trades, or creative industrial users seeking a well-located, small-format warehouse.
Suite C (337 SF Office) space measures 20' X 17.5' with a private entrance and includes utilities and common area amenities. Wifi/communications is tenant's responsibility.
Ample onsite parking, easy circulation, and excellent visibility enhance day-to-day operations. Located within walking distance to Dexter’s vibrant downtown district, the property offers quick access to local services, restaurants, retail, and M-14 for regional connectivity.
- 337 SF office space with private entrance
- 1,725 SF warehouse space
- 16' clear ceiling height
- Access to loading docks and secondary elevated loading door
- Large windows provide natural light
- Private thermostat for climate control
- Warehouse shelving included
- Shared breakroom and restrooms
- Ample onsite parking
Lease Spaces
| Name | Floor | Rate | SF | Vacant | Status | Media | |
|---|---|---|---|---|---|---|---|
| Office Suite C | 1 | $575 /Month | 337 SF | Yes | available | ||
| Warehouse for Lease in Dexter | 1 | $1,750 /Month | 1,725 SF | Yes | available |
Attachments
For Lease
Secondary Uses: Light Industrial, Manufacturing, Warehouse/Distribution
- Lease Rate
- $575 - $1,750 Month
- Available SF
- 337 - 1,725 SF
- Total Available SF
- 2,062 SF
- Building Size
- 47,264 SF
- Warehouse SF
- 1,725 SF
- Is Vacant
- Yes
- Zoning
- I-1 - LIMITED INDUSTRIAL
- Zoning Desc.
- Limited Industrial
- Lease Type
- Modified Gross
- Showing
- Contact Broker/Agent
- Building Class
- B
- Floors
- 1
- Year Built
- 1966
- Submarket
- Washtenaw W of 23
- Nearest MSA
- Ann Arbor
- Tax ID Number
- 08-08-05-230-007
- Property Use Type
- Vacant/Owner-User
- Property Status
- Existing
- Dock Number
- 5
- Ceiling Height
- 16'
- Clear Height
- 16'
- Lighting
- LED
- Nearest Interstate
- I-94
- Nearest Hwy
- US‑23 / M‑14
- Nearest Airport
- DTW, Ann Arbor
- County
- Washtenaw
- Available
- 12/01/2025
- Listed
- 12/16/2025
- Updated
- 04/28/2026
- Listing ID
- d2465b38
- Parcel APN
- 08-08-05-230-007













