Active
Office for Sublease
31500 Northwestern Hwy Farmington Hill, MI 48334
1 / 6

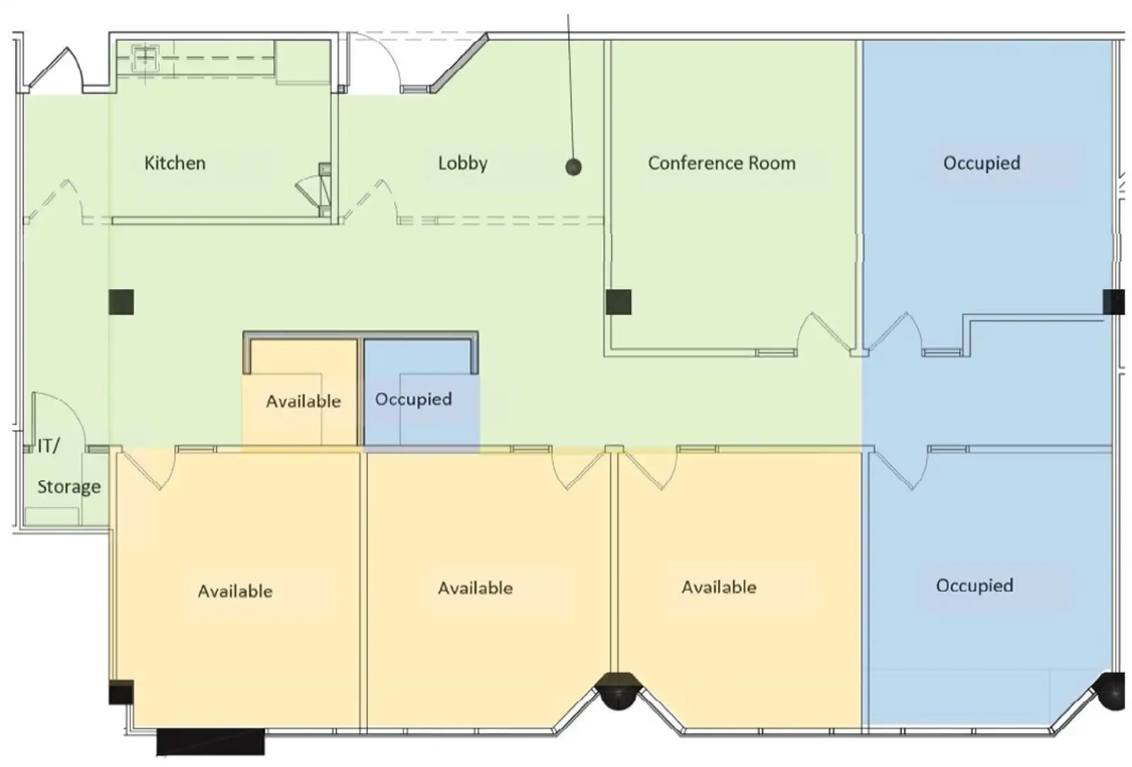
Overview
Located in the Brookfield Office Park
Shared office space in professional office suite.
Three window offices and one workstation.
Shared conference room, copy machine and full kitchen.
Free Wi-Fi.
Newer build-out with higher end finishes.
Easy access to area dining, shopping and services.
Lease Spaces
Name | Rate | SF | Sublease | |
---|---|---|---|---|
Office for Sublease | $2,800 /Month | 2,589 SF | Yes |
Attachments
For Lease
Office
- Lease Rate
- $2,800 Month
- Available SF
- 2,589 SF
- Building Size
- 90,000 SF
- Acres
- 4.441 ac
- Zoning
- OS-1
- Lease Type
- Gross
- Building Class
- B
- Number of Buildings
- 1
- Floors
- 3
- Year Built
- 1986
- Construction Type
- Framed
- Submarket
- Farmington / Farm Hills
- Nearest MSA
- Detroit
- Property Status
- Existing
- County
- Oakland
- Created
- 2025-08-04
- Updated
- 2025-08-04
- Listing ID
- d111612a
- Parcel APN
- 2301301020