Active
Retail Space for Lease
1429 North Telegraph Rd, Monroe, MI 48162
1 / 3

Overview
Renovated shopping center with high visibility and a traffic count of 30,000 vehicles per day, located on US-24 just south of Stewart Rd. This property is strategically positioned in a prime location, central to a diverse range of popular franchises and national retailers. These include well-known names such as McDonald's, Wendy's, Burger King, Arby's, Big Lots, Harbor Freight, Culver's, Dairy Queen, Taco Bell, Chipotle, Qdoba, Meijer, and many others. This is an excellent opportunity for businesses looking to establish a presence in a high-traffic area with a strong consumer base. This is a triple net lease. Taxes to be determined.
Lease Spaces
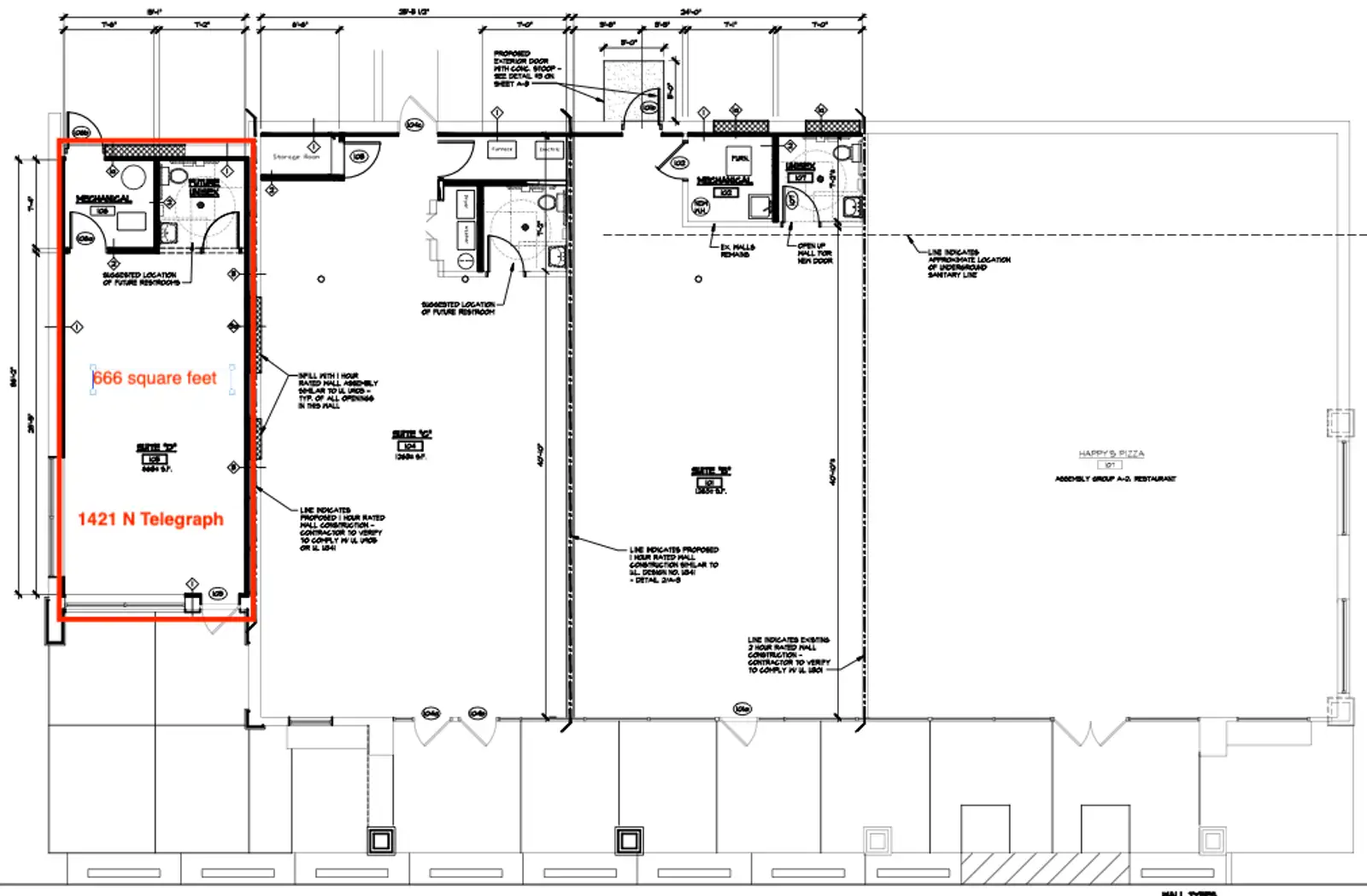
| Name | Rate | SF | |
|---|---|---|---|
| Suite 1421 | $23 /SF/Year | 666 SF |
For Lease
Retail
Secondary Uses: Strip Center
- Lease Rate
- $23 SF/year
- Available SF
- 666 SF
- Building Size
- 7,020 SF
- Acres
- 0.709 ac
- Lease Type
- NNN
- Business Park
- Monroe Mall
- Number of Buildings
- 1
- Floors
- 1
- Year Built
- 1979
- Construction Siding
- Brick
- Construction Type
- Masonry
- Submarket
- Monroe County
- Property Status
- Existing
- Lot Size
- 154' x 200'
- In Opportunity Zone
- Yes
- County
- Monroe
- Available
- 08/18/2015
- Created
- 08/18/2025
- Updated
- 08/18/2025
- Listing ID
- ca75aafc
Contact Brokers
Property Area Insights
presented by Placer.ai

