The Oakland
315 3rd Street, Bay City, MI 48708

Overview
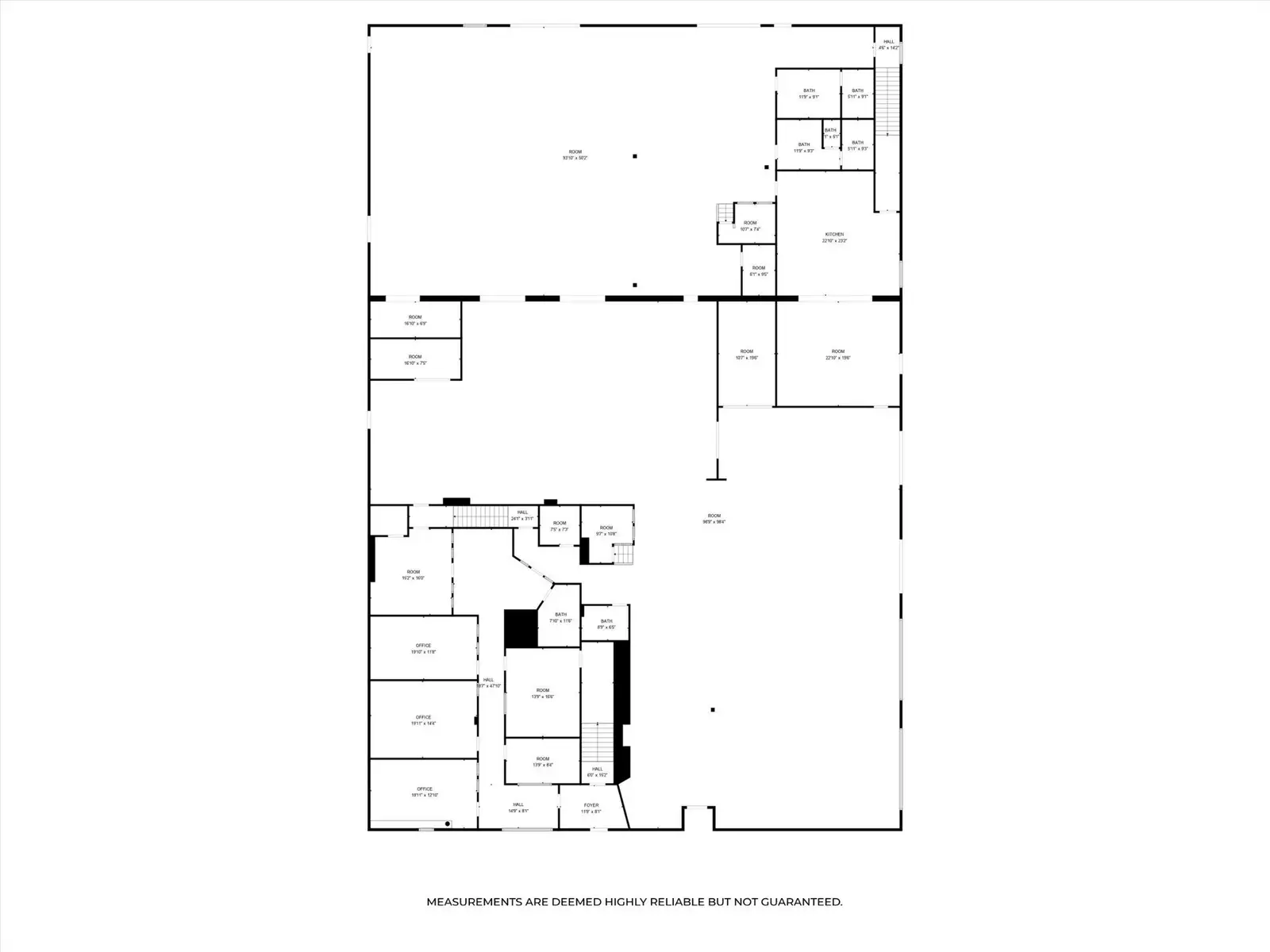
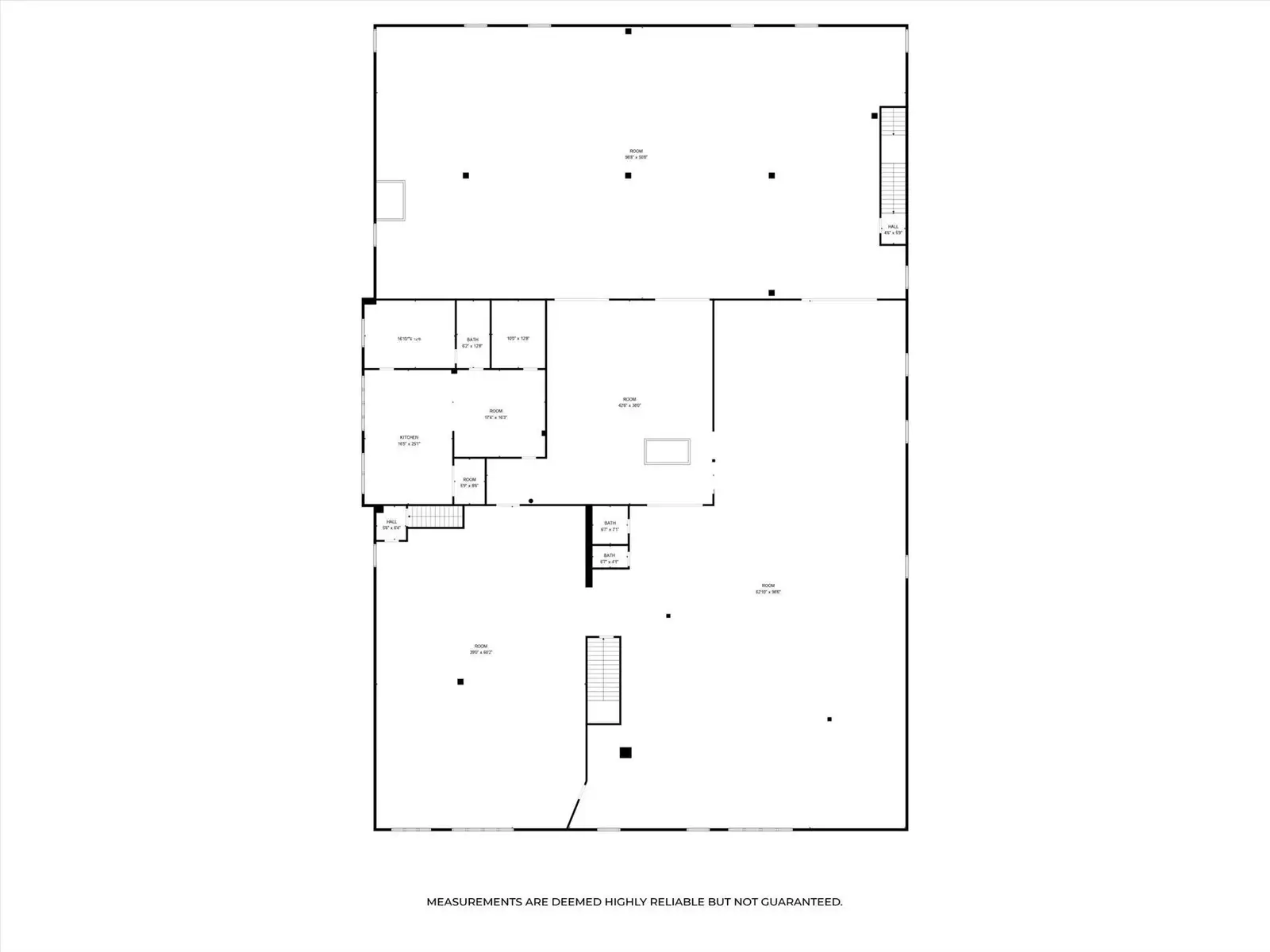
Commissioned in 1912 by the Oakland Motor Car Company, The Oakland is one of Bay City's most recognizable buildings. A 1992 addition brought its footprint up to an impressive 30,000 sqft of high quality constructed warehouse & office space. With its prime downtown Bay City position, surrounded by over 225 apartments & nearly 100 condos, this building would be a great investment for an indoor storage facility, however there are many potential uses within its historic walls! Notable features include: a 6000 lb freight elevator, 3 phase power, the building is fully sprinkled with a dry fire supression system, multiple overhead/bay doors throughout the building (10' tall), two loading docks, 3200 sqft of office space on main floor & luxury office/meeting space on the second level, the large conference room/studio on main level is fully ADA compliant, and there's room for 100+ vehicles between the main & upper levels. There is ample parking in the back lot, and on street parking throughout the immediate area. You can be part of downtown's rapid expansion & evolution in one of our original buildings that showcases our rich automotivehistory, from the era that built Bay City!
There is 3200 sqft of office space available for lease (see lower left quadrant of the main floor sketch). Lease would be for the entire office area, $2300/month for 5 years.
For Sale
- Sale Price
- $604,000
- Price Per SF
- $20.1/SF
- Building Size
- 30,000 SF
- Acres
- 0.51 ac
- Zoning
- C-3
- Number of Buildings
- 1
- Floors
- 2
- Year Built
- 1912
- Year Renovated
- 1995
- Construction Siding
- Brick
- Construction Type
- Masonry
- Parking Spaces
- 12
- Nearest MSA
- Bay City
- Property Status
- Existing
- Lot Size
- 200' x 110'
- In Opportunity Zone
- Yes
- County
- Bay
- Created
- 02/13/2025
- Updated
- 11/24/2025
- Listing ID
- 857ea61d
- Parcel APN
- 160-021-329-004-10
Contact Broker
Property Area Insights
presented by Placer.ai





































