Downtown Ann Arbor Office for Lease
301 E Liberty St, Ann Arbor, MI 48104

Overview
Situated at the prominent corner of Liberty Street and Fifth Avenue, this building is at the heart of Ann Arbor's Central Business District (CBD). Its prime location offers walking distance access to an array of downtown retail shops, restaurants, and the University of Michigan campus. The building also provides easy access to major highways including I-94, US-23, and M-14.
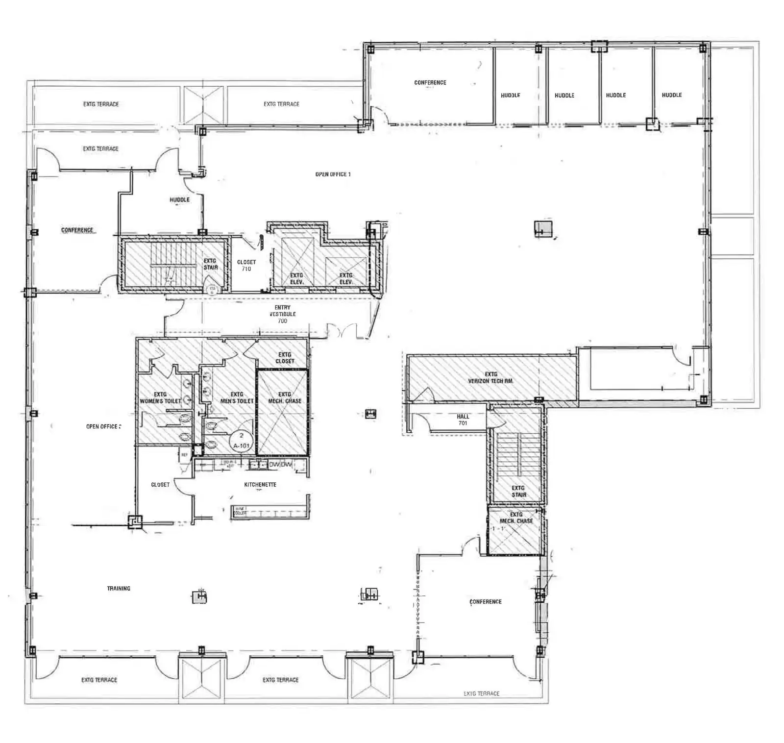
This Class A building is professionally managed with state-of-the-art on-site services. It offers a variety of office configurations suitable for both private and open office setups, complete with reception areas, conference rooms, and kitchenettes. The building boasts great views and abundant natural light thanks to its numerous windows. Suite 200 is on the second floor and includes mostly private office floor plan, reception area, conference room, and kitchenette. It has lots of windows for natural sunlight.
On-site parking is available, and there are ample municipal street, lot, and structure parking options nearby.
Highlights
• Located in Ann Arbor's CBD
• Walking distance to downtown amenities and U of M Campus
• Easy highway access
• State-of-the-art building management
• Various office configurations
• Abundant natural light
• On-site and nearby parking options
Explore the vibrant downtown Ann Arbor while enjoying a modern, well-equipped office space that meets all your business needs. Contact us for more information and to schedule a viewing.
- Class A building with exceptional visibility
- State of the art management
- High foot and vehicle traffic
- Municipal lots and structure parking nearby
- Located at the corner of Liberty Street and Fifth Avenue
- Prime location in the heart of downtown Ann Arbor's Central Business District
- Walking distance from dozens of downtown retail and restaurants
Lease Spaces
| Name | Floor | Rate | SF | |
|---|---|---|---|---|
| Suite 700 | 7 | $29.5 /SF/Year | 9,604 SF | |
| Suite 680 | 6 | $29.5 /SF/Year | 3,643 SF | |
| Suite 500 | 5 | $29.5 /SF/Year | 6,493 SF | |
| Suite 150 | 1 | $29.5 /SF/Year | 4,448 SF | |
| Suite 200 | 2 | $29.5 /SF/Year | 3,785 SF |
Attachments
For Lease
- Lease Rate
- $29.5 SF/year
- Available SF
- 3,643 - 9,604 SF
- Total Available SF
- 27,973 SF
- Building Size
- 85,000 SF
- Acres
- 0.33 ac
- Zoning
- D-1
- Zoning Description
- Central Business District
- Lease Type
- Modified Gross
- Building Class
- A
- Number of Buildings
- 1
- Floors
- 7
- Year Built
- 1985
- Year Renovated
- 2017
- Construction Siding
- Brick
- Construction Type
- Masonry
- Submarket
- Washtenaw W of 23
- Nearest MSA
- Ann Arbor
- Property Status
- Existing
- Nearest Interstate
- I-94 - 2.3 mi
- Nearest Highway
- US-23 / M-14 - 2.5 mi
- Nearest Airport
- Detroit Metropolitan Wayne County Airport - 25 mi
- Nearest Port
- Port of Detroit - 43 mi
- County
- Washtenaw
- Listed
- 06/05/2024
- Updated
- 01/26/2026
- Listing ID
- 7772c3f7
- Parcel APN
- 09-09-29-112-025























