Site Plan Condo Development for Sale - Dexter
7956 & 7960 Grand St, Dexter, MI 48130

Overview
Millennium Place Condominiums is a site condominium for 34 residential units in the City of Dexter. Seller will consider owner financing to an experienced, qualified buyer. There is on site parking and is walking distance to downtown, schools, shopping, parks, and the Border 2 Border trail.
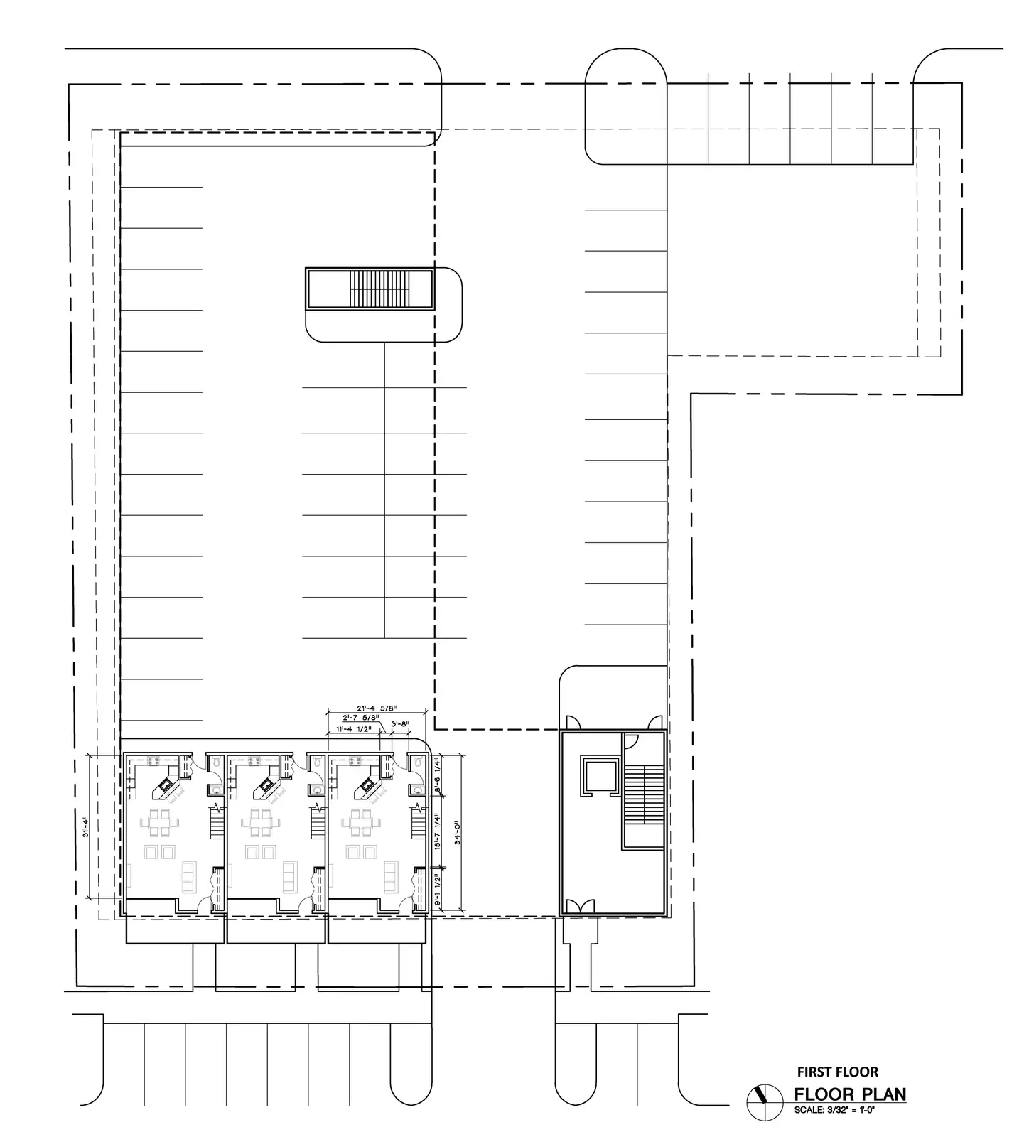
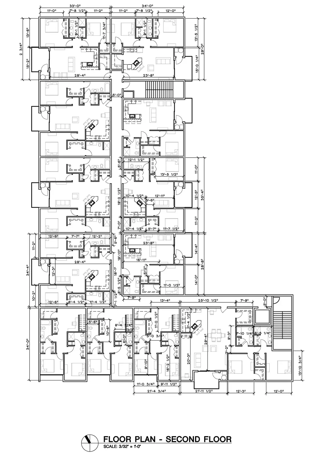
The building is three stories consisting of:
First Floor - 3 units - 2 story with 2 bedroom/2.5 bath
Second Floor - 9 units - five 2 bedroom/2 bath, two 1 bedroom/1 bath, two 2 bedroom/1bath
Third Floor - 11 units - seven 2 bedroom/2 bath, two 1 bedroom/1 bath, two 2 bedroom/1 bath
Fourth Floor - 11 units - seven 2 bedroom/2 bath, two 1 bedroom/1 bath, two 2 bedroom/1 bath
Forty-six (46) on-site parking spaces plus street parking.
- Three story - 34 Condo units with 46 on-site parking spaces plus street parking
- First Floor - 3 units - 2 story with 2 bedroom/2.5 bath
- Second Floor - 9 units - five 2 bedroom/2 bath, two 1 bedroom/1 bath, two 2 bedroom/1bath
- Third & Fourth Floor - 11 units - seven 2 bedroom/2 bath, two 1 bedroom/1 bath, two 2 bedroom/1 bath
- City of Dexter - walking distance to downtown shops, parks, restaurants, schools, and the Border to Border Trail
Attachments
For Sale
Secondary Uses: Multifamily, Residential Development, Mid Rise
- Sale Price
- $850,000
- Price Per Acre
- $1.2M/ac
- Acres
- 0.71 ac
- Zoning
- PUD (Planned Unit Development)
- Zoning Description
- Planned Unit Development
- Building Name
- Millennium Place
- Floors
- 4
- Submarket
- Washtenaw W of 23
- Nearest MSA
- Ann Arbor
- Tax ID Number
- 08-08-06--280-009 and 08-08-06-280-028
- Lot Size
- 135' x 198'
- Nearest Interstate
- I-94
- Nearest Highway
- US-23, M-14
- Nearest Airport
- DTW, Ann Arbor
- County
- Washtenaw
- Listed
- 03/21/2023
- Updated
- 01/27/2026
- Listing ID
- 6702d30c
- Parcel APN
- 08-08-06-280-009









