Economical Westside Office/Flex for Lease in Ann Arbor
251 Jackson Plaza, Ann Arbor, MI 48103

Overview
4,000 SF Industrial/Flex Space | West Ann Arbor – Jackson Road Corridor
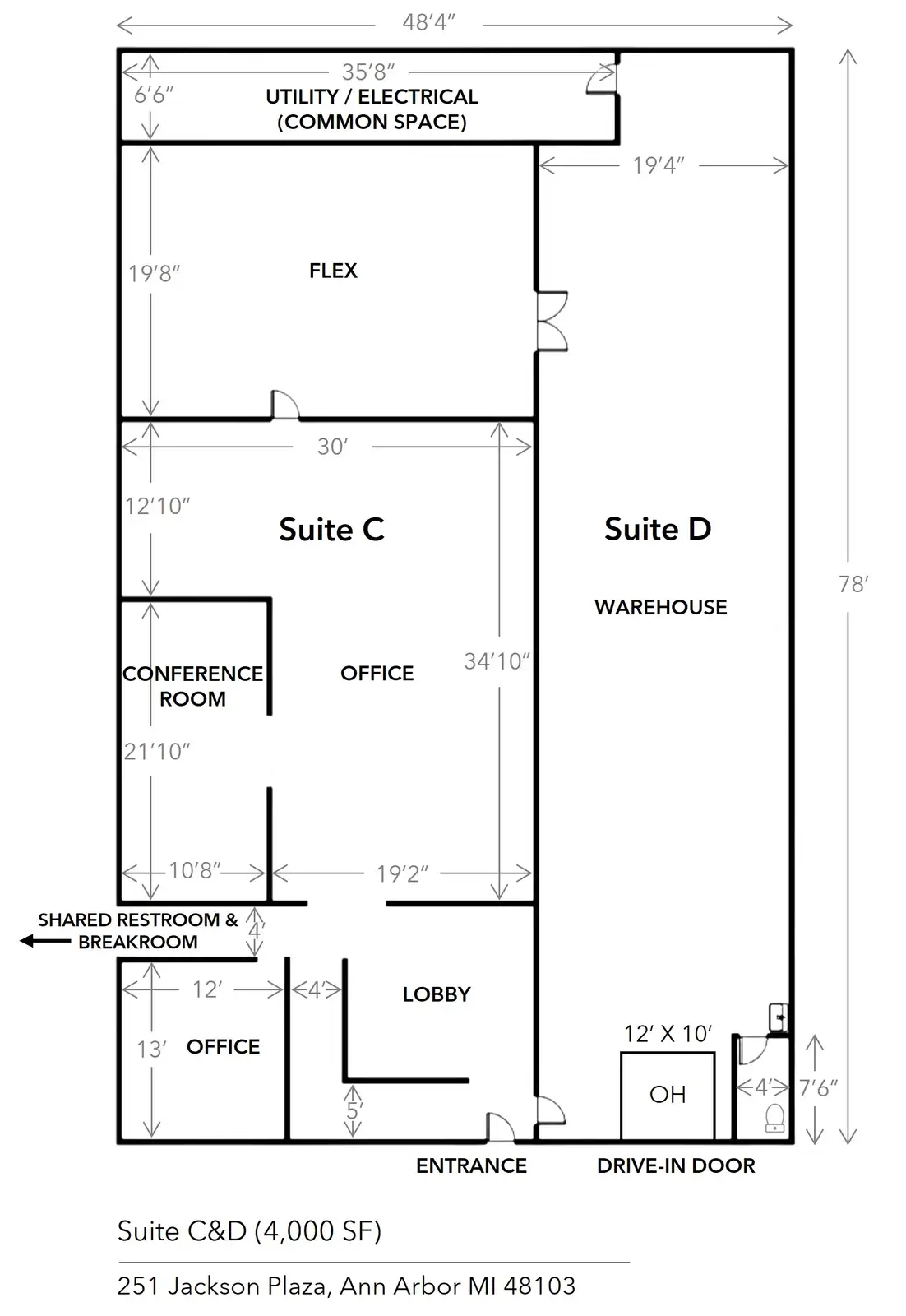
Available on Ann Arbor’s west side just off the Jackson Road corridor between Wagner Rd. and Zeeb Rd., this 4,000 SF I-1 (Limited Industrial) zoned space offers a clean, functional mix of warehouse and finished flex/office buildout.
The property features an open, well-lit warehouse area with a 12’ x 10’ drive-in overhead door, providing efficient access for storage, light industrial use, or operational support; and has a 14’ ceiling height with an 11’ clearance. Interior improvements include multiple finished rooms ideal for tech, lab, studio, research, or clean workspace applications, with professional separation via glass double-door entries.
Tenants also benefit from shared kitchen and restroom facilities, ample on-site parking, and an economical footprint in one of Ann Arbor’s most accessible industrial corridors.
Located with quick connectivity to I-94, M-14, and US-23, and just minutes from Dexter and downtown Ann Arbor, this is an excellent opportunity for users seeking flexible industrial space without sacrificing location.
- Two suites for a total of 4,000 SF
- I-1 Limited Industrial zoning
- Combination of warehouse + finished office/flex rooms
- 12’ x 10’ drive-in overhead door
- Bright interior lighting and open clear-span layout
- Shared kitchen and restrooms
- Ample parking
- Prime west Ann Arbor location near Jackson Rd.
- Easy access to major highways and downtown
Lease Spaces
| Name | Rate | SF | Vacant | Available Date | Status | |
|---|---|---|---|---|---|---|
| Suite C and D | $11 /SF/Year | 4,000 SF | Yes | 03/01/2026 | available |
Attachments
For Lease
Secondary Uses: Light Industrial, Warehouse/Flex, Warehouse/Office
- Lease Rate
- $11 SF/year
- Available SF
- 4,000 SF
- Building Size
- 25,618 SF
- Office SF
- 1,620 SF
- Warehouse SF
- 2,380 SF
- Zoning
- I-1
- Zoning Desc.
- Limited Industrial
- Lease Type
- Modified Gross
- Showing
- Contact Broker/Agent
- Nearest MSA
- Ann Arbor
- Tax ID Number
- H-08-26-105-005
- Office Ceiling Height
- 11'
- Drive-In Number
- 1
- Drive-In Size
- 12'x10'
- Ceiling Height
- 11' - 14'
- Clear Height
- 11'
- Nearest Interstate
- I-94
- Nearest Hwy
- M-14 and US-23
- Nearest Airport
- DTW, Willow Run, Ann Arbor Airport
- Power Provider
- Private - DTE
- Power
- 240 V @ 100 A, 1 Phase
- Water Provider
- City - City of Ann Arbor
- Sewer Provider
- City - City of Ann Arbor
- Gas Provider
- Private - DTE
- County
- Washtenaw
- Listed
- 02/04/2026
- Updated
- 03/13/2026
- Listing ID
- 3f854bbe
- Parcel APN
- H -08-26-105-005
















