Active
Retail for Lease
3531 Patterson Ave SE Grand Rapids, MI 49512
1 / 5

Overview
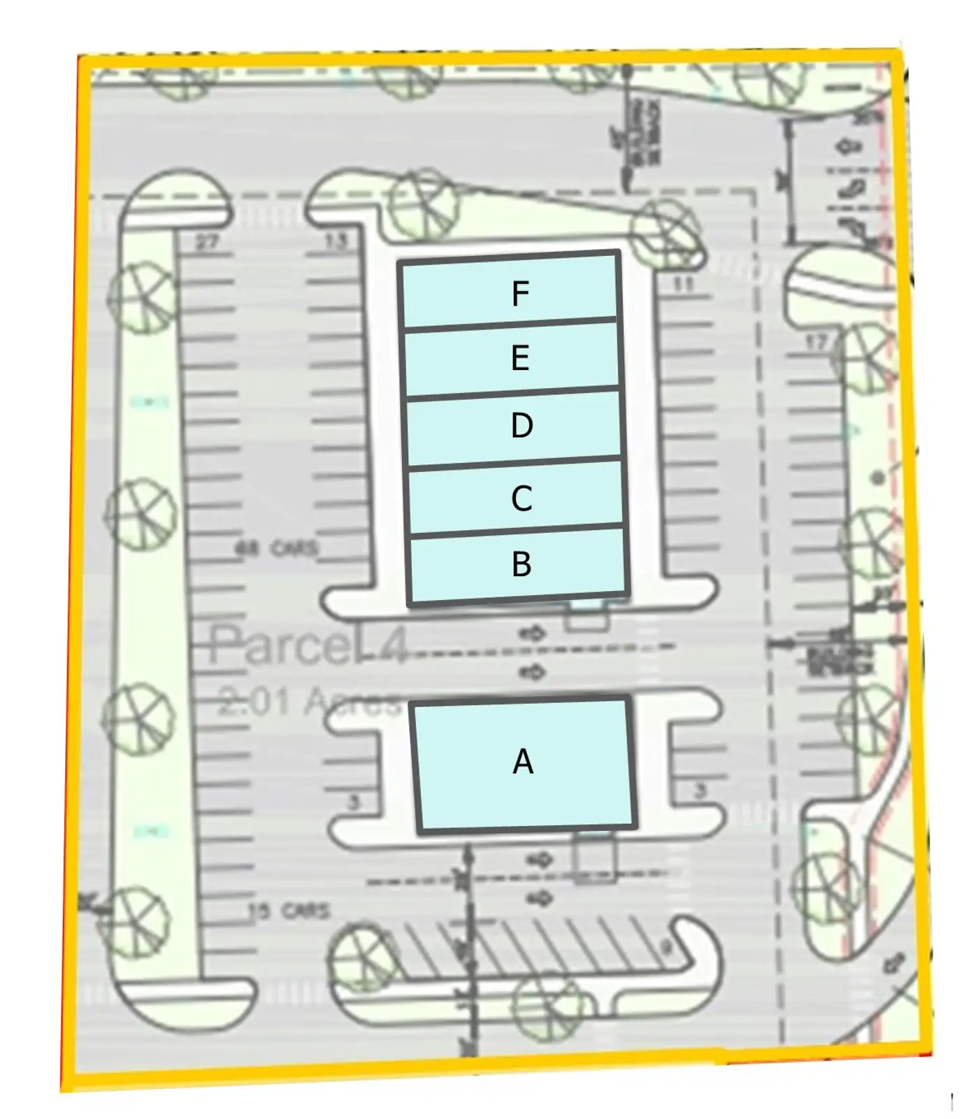
Unit 4A is proposed free-standing.
Please contact listing agent for more information.
Lease Spaces
Name | Rate | SF | |
---|---|---|---|
Unit 4A | $47.5 /SF/Year | 3,000 SF |
For Lease
Retail
- Lease Rate
- $47.5 SF/year
- Available SF
- 3,000 SF
- Acres
- 32.89 ac
- Zoning
- R1-C
- Lease Type
- NNN
- Submarket
- Airport District - GRR
- Lot Size
- 100' x 275'
- County
- Kent
- Available
- 2024-10-01
- Created
- 2024-04-16
- Updated
- 2025-04-14
- Listing ID
- 37b5ef5e