118 E FRONT ST
118 E Front St, Traverse City, MI 49684

Overview
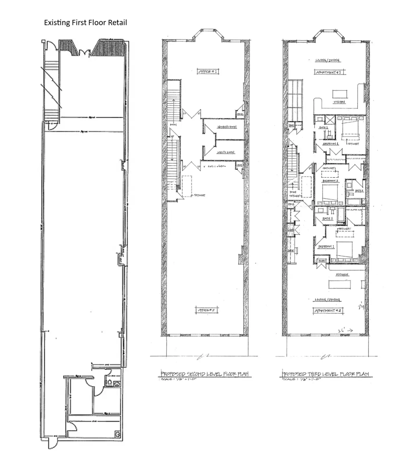
The Iconic Wurzburg Building is now on the market! Located on the most desirable 2 blocks of downtown Traverse City with over 9,000 SF between 3 floors. Handsome facade of natural wood with bay windows extended onto Front Street and a designated crosswalk in front of the building. The brick exteriors and interior add to the charm of this architectural gem. The brick interior walls could be revealed. With 10ft + ceilings it is prime for developing the upper floors. The full basement, not included in the 9045 SF, provides storage and space for mechanicals. There are (3) private parking spaces sitting behind the building. Ample parking exists behind the building in both metered lots and parking spaces. The space is zoned C-4B for commercial or residential use.
Attachments
For Sale
Secondary Uses: Mixed Use
- Sale Price
- $2,950,000
- Price Per SF
- $326.1/SF
- Building Size
- 9,045 SF
- Acres
- 0.104 ac
- Zoning
- C-4b
- # of Buildings
- 1
- Floors
- 3
- Year Built
- 1900
- Tax ID Number
- 28-51-794-039-00
- Property Status
- Existing
- County
- Grand Traverse
- Available
- 01/27/2025
- Listed
- 01/27/2025
- Updated
- 01/30/2026
- Listing ID
- 0616e80a
- Parcel APN
- 51-794-039-00













